ГлавнаяКаталог Офис — Светлая ул, 1

Светлая ул, 1, 540.00 кв. м

540 000 ₽
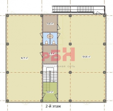
Площадь: 540.00кв. м Этаж 1 из 2
1 000 ₽/
Устименко Максим
Устименко Максим
Специалист
или оставьте ваш номер,
и я перезвоню в течение 5 минут
Нажимая на кнопку, вы даете своё согласие на обработку персональных данных и соглашаетесь с политикой конфиденциальности
Новое 2-х этажное отдельно стоящее здание с большой парковкой площадью 540 кв.м по адресу хутор Камышеваха, Большелогское сельское поселение, Аксайский район, Ростовская область, Светлая улица, 1

Характеристики и преимущества:
- новое 2-х этажное отдельно стоящее здание 
- возможна аренда площадей от 100 кв.м
- отдельный вход, предусмотрен запасной выход, своя зона парковки на 25 м/мест 
- свободная планировка, возможен ремонт под арендатора, предоставление арендных каникул 
- высота потолков 3,5м
- разрешенная мощность 50 кВт с возможностью увеличения, напряжение 380В
- коммуникации: вода холодная+бойлер, свой санузел, автономное отопление 

- 1-я линия, интенсивный автомобильный и пешеходный трафик 
- возможно размещение рекламной вывески на фасаде здания 
- вблизи располагается супермаркет Пятерочка, продукты Светофор, Сосновый бор
- стрит-ритейл 

------------------------------------------------------------------------------------
По всем вопросам можете обращаться к вашему персональному менеджеру:
Устименко Максим - консультант по направлению офисные, торговые и производственные помещения
------------------------------------------------------------------------------------
Регион Бизнес Недвижимость
От собственника. Без комиссии.
Специальные условия для агентов по данному объекту.



Номер объекта: #5/551140/17649
Расположение

Светлая ул, 1

Похожие объекты

Посмотреть другие объявления в этой категории