ГлавнаяГотовый арендный бизнес — Каяни ул, 20б

Каяни ул, 20б,
634.00 м2

170 000 000 руб.

268138 руб./м2

Следить за ценой


Площадь: 634.00 м2

Окупаемость: по запросу


Эксклюзивное помещение с арендаторами в новом ЖК «Шолохов»

ГАБ, Помещения с Арендаторами площадью 634 кв.м по адресу г. Ростов-на-Дону, улица Каяни, 20

Характеристики и преимущества:
- помещения находятся на 1-м этаже нового капитального здания в активно развивающемся густонаселённом районе

Арендаторы:
1. Якорный арендатор - Х5 Retail Group или «Магнит» площадью 551 кв.м (с идентичными условиями). Со второго года арендная ставка составит 2 500 руб/кв.м, что обеспечивает ежемесячный доход в размере 1 378 750 руб
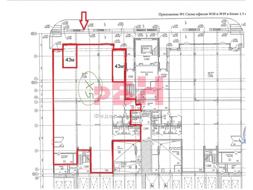
2. Два дополнительных арендатора - помещения по 43–45 кв.м, каждый из которых приносит по 250 000 – 300 000 руб в месяц.

Арендный поток не менее 1 600 000 рублей в месяц с возможностью дальнейшей индексации.

Отличное предложение для инвестиций с высокой ликвидностью, стабильной доходностью и надёжными арендаторами

--------------------------------------------------------
По всем вопросам можете обращаться к вашему персональному менеджеру:
Старченко Инна - консультант по направлению торговые и офисные помещения
--------------------------------------------------------
Регион Бизнес Недвижимость
От собственника. Без комиссии.
Специальные условия для агентов по данному объекту.Номер объекта: #5/552680/17649

Специалист

Старченко Инна

+7-961-301-25-23

или оставьте ваш номер,
и я перезвоню в течение 5 минут

Согласен с Политикой конфинденциальности и с Политикой оператора в отношении обработки персональных данных

Отправляя заявку вы соглашаетесь на обработку персональных данных

Похожие объекты

Посмотреть другие объявления в этой категории