ГлавнаяКаталог Производство — Днепропетровская ул, 50
Ксёнз Лариса
Ксёнз Лариса
Специалист
или оставьте ваш номер,
и я перезвоню в течение 5 минут
Нажимая на кнопку, вы даете своё согласие на обработку персональных данных и соглашаетесь с политикой конфиденциальности
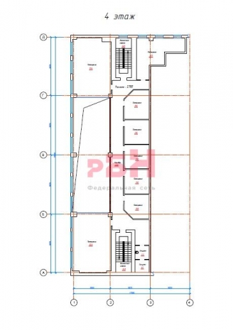
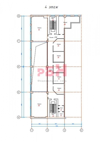
Отапливаемое двухэтажное производственно-складское здание со встроенными офисными помещениями площадью 10070 м по адресу г. Ростов-на-Дону,  ул. Днепропетровская, 50

Характеристики и преимущества:
- двухэтажное здание со встроенными офисными помещениями
- площадь первого производственного этажа 4250 кв.м, высота 6 метров до балки, нагрузка 5-10 тн/кв.м
- площадь второго этажа также 4250 кв.м., высота метров до балки, нагрузка на перекрытие 1,1 тн/кв.м
- площадь подсобно-производственных и офисных помещений 1570 кв.м, расположены с торца здания в 4 уровня
- 4 ворот размером 4*4, заезд с уровня 0 
- есть 2 лифта, грузоподъемность 2 тн и один внешний подъемник на 1,5 тн
- разрешенная мощность 1,2 МВт
- коммуникации: вода, канализация центральные, отопление от своего газового котла
Возможно организовать пандус и площадку для отстоя транспорта.

Возможен торг 
------------------------------------------------------------------------------------
По всем вопросам можете обращаться к вашему персональному менеджеру:
Ксёнз Лариса  - консультант по направлению складские и производственные помещения
------------------------------------------------------------------------------------
«Регион Бизнес Недвижимость».
От собственника. Без комиссии.
Специальные условия для агентов по всем нашим объектам.Номер объекта: #5/552856/17649
Расположение

Днепропетровская ул, 50

Похожие объекты

Посмотреть другие объявления в этой категории