ГлавнаяКаталог Торговая площадь — Элеваторный пер, 6/3

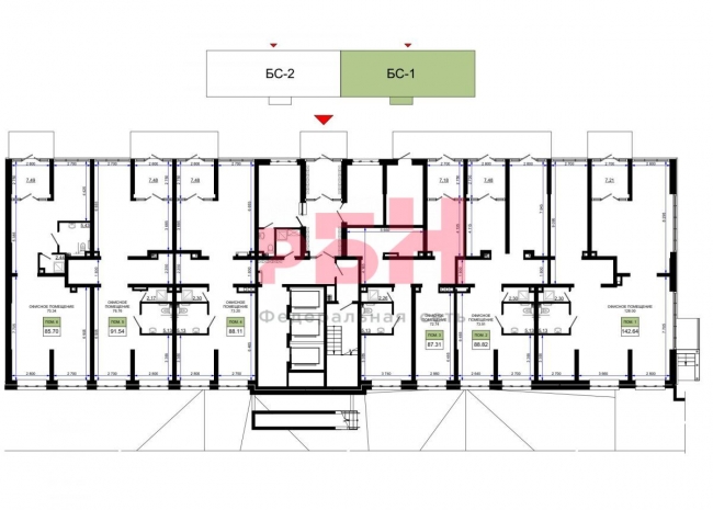
Элеваторный пер, 6/3, 88.82 кв. м

14 211 200 ₽
Площадь: 88.82кв. м Этаж 1 из 25
160 000 ₽/
Адаменко Евгения
Адаменко Евгения
Специалист
или оставьте ваш номер,
и я перезвоню в течение 5 минут
Нажимая на кнопку, вы даете своё согласие на обработку персональных данных и соглашаетесь с политикой конфиденциальности
Торговое помещение 88,82 м² в новом ЖК Октябрь Парк по адресу г. Ростов-на-Дону, пер. Элеваторный, 6/3.

Коммерческое помещение стрит-ритейл формата в составе масштабного жилого проекта - ЖК Октябрь Парк. Отличный выбор под магазин, кофейню, салон, аптеку, студию, шоурум и другой востребованный формат бизнеса в густонаселённом районе.

Характеристики и преимущества:
Срок сдачи - IV квартал 2026 года

- 1-й этаж 25-этажного жилого дома
- 2-я линия, но в составе жилого массива - высокая проходимость
- ЖК Октябрь Парк - 22 дома по 20–25 этажей, класс комфорт-плюс
- на территории комплекса находится: школа на 2500 мест, 3 детских сада, поликлиника, храм, парк 5Га
- интенсивный авто- и пешеходный трафик - идеальное место для розничной торговли
- концепция город в городе — своя инфраструктура, сформированный спрос

- отдельный вход 
- предчистовая отделка (white box)
- высота потолков - 3,6 м
- свободная планировка - под любой формат
- разрешённая мощность - 5 кВт, напряжение 380В, с возможностью увеличения
- система приточно-вытяжной вентиляции

Инвестиция в перспективную локацию с высоким потенциалом окупаемости и стабильным потоком клиентов.

Свяжитесь с нами, чтобы узнать подробности!
------------------------------------------------------------------------------------
По всем вопросам можете обращаться к вашему персональному менеджеру:
Адаменко Евгения - консультант по направлению офисные и торговые помещения
-----------------------------------------------------------------------------------
Регион Бизнес Недвижимость
От собственника. Без комиссии.
Специальные условия для агентов по данному объектуНомер объекта: #5/552564/17649
Расположение

Элеваторный пер, 6/3

Похожие объекты

Посмотреть другие объявления в этой категории