ГлавнаяКаталог Производство — Ворошилова ул, 2
Ксёнз Лариса
Ксёнз Лариса
Специалист
или оставьте ваш номер,
и я перезвоню в течение 5 минут
Нажимая на кнопку, вы даете своё согласие на обработку персональных данных и соглашаетесь с политикой конфиденциальности
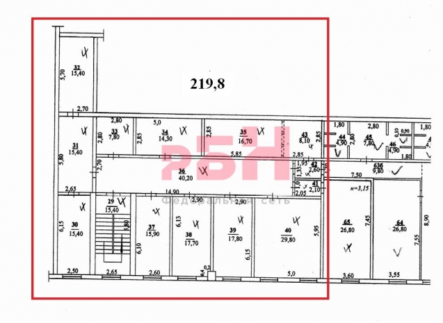
Производственное помещение со встроенными АБК площадью 4140 кв.м по адресу ​Шахты, Ростовская область, улица Ворошилова, 2.

Характеристики и преимущества:
- одноэтажное теплое строение примерно 80хх годов постройки. Конструкция - железобетонная, перегородки внутри не имеют несущую способность, при необходимости их можно вынести и сделать пространство свободным.
- к производственному корпусу есть асфальтовый подъезд, есть возможность маневра для транспорта, своя зона парковки на 50м/мест 

​​​​​​​- заезд с уровня 0
- высота потолков 8м
- 3-е ворот 3*4,5м
- высота потолков 6м
- мощность 300 кВт с возможностью увеличения, напряжение 380В
- все коммуникации

- производственные помещения находятся в одном корпусе с офисными и бытовыми помещениями, что делает процесс производства наиболее удобным
- в помещении вода техническая, канализация - ЛОС
- есть своя ГРПШ при наличии проекта эксплуатации газового оборудования возможно техническое присоединение к газу
- пожарная сигнализация 
- в кровле присутствуют технологические отверстия для устройства приточно-вытяжной системы вентиляции
- расстояние до жилья 300 м
​​​​​​​
​​​​​​​------------------------------------------------------------------------------------
По всем вопросам можете обращаться к вашему персональному менеджеру:
Ксенз Лариса - консультант по направлению складские и производственные помещения
------------------------------------------------------------------------------------
Регион Бизнес Недвижимость
От собственника. Без комиссии.Номер объекта: #5/550730/17649
Расположение

Ворошилова ул, 2

Похожие объекты

Посмотреть другие объявления в этой категории