ГлавнаяГотовый арендный бизнес — Большая Садовая ул, 180-182

Большая Садовая ул, 180-182,
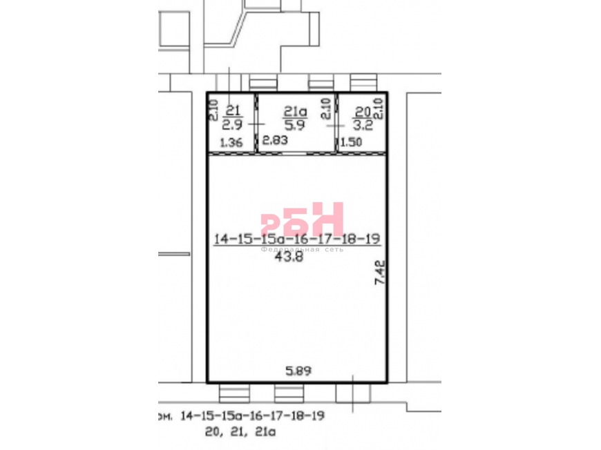
55.80 м2

35 000 000 руб.

627240 руб./м2

Следить за ценой


Площадь: 55.80 м2

Окупаемость: по запросу


Продается ГАБ, торговое помещение с арендатором площадью 55,8 кв.м, в самом сердце Ростова-на-Дону - ул. Большая Садовая, 180-182.

Характеристики и преимущества:
- 1-й этаж 3-х этажного здания 
- Объект с арендатором, арендный поток составляет 190.000 рублей 
- Кадастровый номер: 61:44:0041104:294

- Это одно из самых престижных и трафиковых мест города, высокий пешеходный и автомобильный поток
- Первая линия центральной улицы города обеспечивает высокий трафик и постоянный поток клиентов
- Окружение: деловой и культурный центр - рядом Театральная площадь, Музыкальный театр, парк, школы, ВУЗы, рестораны, гостиницы, магазины, бизнес-центры

- Отдельный вход, зона парковки 
- Разрешенная мощность 30 кВт, напряжение 220В
- Помещение в отличном состоянии
- Высота потолков 3м
- Все коммуникации: вода холодная/горячая, свой санузел, центральное отопление 
- Установлены сплит-системы, вытяжная вентиляция 
- Проведен интернет, телефон, пожарная и охранная сигнализация 

--------------------------------------------------------------------
По всем вопросам можете обращаться к вашему персональному менеджеру:
​​​​​​​Бибик Николай - консультант по торговым и офисным помещениям
------------------------------------------------------------------------------------------
Регион Бизнес Недвижимость.
От собственника. Без комиссии.
Специальные условия для агентов по данному объекту


Номер объекта: #5/553378/17649

Специалист

Бибик Николай

+7-961-301-25-23

или оставьте ваш номер,
и я перезвоню в течение 5 минут

Согласен с Политикой конфинденциальности и с Политикой оператора в отношении обработки персональных данных

Отправляя заявку вы соглашаетесь на обработку персональных данных

Похожие объекты

Посмотреть другие объявления в этой категории