ГлавнаяГотовый арендный бизнес — Чапаева ул., 19

Чапаева ул., 19,
86.30 м2

5 925 000 руб.

68655 руб./м2

Следить за ценой


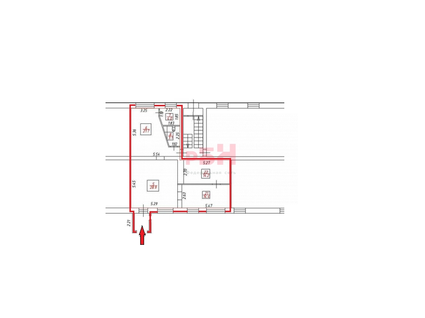
Площадь: 86.30 м2

Окупаемость, лет: 9.6


ПРЕДЛАГАЕТСЯ в ПОКУПКУ ПОМЕЩЕНИЕ общей площадью 86.3 кв.м., расположенного на первой линии оживлённой улице города, на пересечении улиц Чапаева - Металлургов. В помещения есть арендатор, магазин цветов «Райский сад»;
Без комиссии для ПОКУПАТЕЛЯ

- развитая инфраструктура: рядом находятся алкомаркет «Градус твоего города», парикмахерская «Стиль», ПВЗ Вайлдберриз, фото-салон «Улыбка», магазины продукты и сувениры, многое др.;
- транспортная доступность: в непосредственной близости расположена остановка общественного транспорта «Гостиница Гавань»(автобус, маршрутное такси);
- общая площадь 86,3 кв.м
- этаж 1/ общее количество этажей 5;
- отдельный вход в помещение со стороны улицы Чапаева;
- мокрая точка 1 шт., есть санузел;
- высота потолков 2.7 метра;
- вытяжка общедомовая, в помещении два кондиционера;
- мощность 10 кВт.;
- бесплатная парковка, всегда есть свободные парковочные места;

Помещение может использоваться: под клиентский офис, офис компании, магазин, пункт выдачи, студию красоты, фото студию и многое другое.

Стоимость объекта: 5 925 000 (Пять миллионов девятьсот двадцать пять тысяч) рублей.

Более подробную информацию уточняйте у наших специалистов.
------------------------------------------------------
"Регион Бизнес Недвижимость".
Коммерческая недвижимость.
Без комиссии для покупателей.





Арт. 127868459

Специалист

Ададуров Сергей

+7-961-301-25-23

или оставьте ваш номер,
и я перезвоню в течение 5 минут

Согласен с Политикой конфинденциальности и с Политикой оператора в отношении обработки персональных данных

Отправляя заявку вы соглашаетесь на обработку персональных данных

Похожие объекты

Посмотреть другие объявления в этой категории